Дизайн проект 4 -кімнатної квартири студії в ЖК «Grand City Dombrovskyi»

700,00
грн.
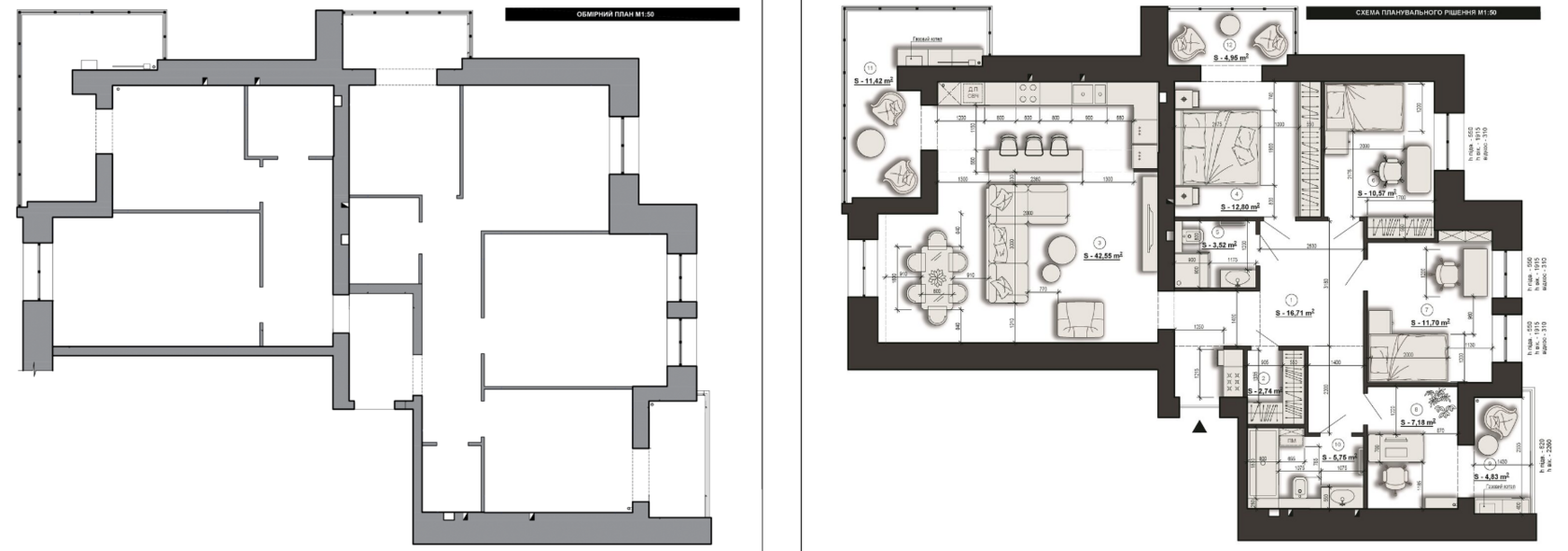
4-кімнатна квартира-студія, площею 134 м², розташована в новому ЖК
У вітальню включено загальну та кухонну зону, також є вихід на простору лоджію, де завдяки її об'єму розмістилося додаткове сантехнічне обладнання: котел, сушильна та пральна машини.

Тут ми розмістили велику столову зону для 6 чоловік, а також зону відпочинку з диваном і великим телевізором, де могла б розміститися і відпочивати вся родина.

Враховуючи, що замовники мають дітей — двох синів різного віку, то для кожної дитини було створено окрему спальню.

За бажанням одного з дітей 1 спальня зроблена в яскравих тонах у стилістиці супергероїв. У кімнаті є комфортне робоче місце, пристосоване для проведення часу за комп'ютером та виконання домашніх завдань. Спальня оснащена великими зонами для зберігання речей, TV-зоною, добре обіграним сценарієм освітлення.

2 спальня виконана у спокійних зелено-сірих тонах. У кімнаті розташоване велике м'яке ліжко, зони для зберігання речей, зручний стіл для комп'ютера та виконання уроків. Також, як і в попередній спальні, тут обладнана TV-зона. Схема освітлення якісно опрацьована.

У квартирі є два санвузли, тому що площа житлового простору велика та одного санвузла на всіх мешканців було б недостатньо.

Гостьовий санвузол. Це світлий та просторий санвузол, виконаний у сучасному стилі із затишними акцентами дерева. У ванній встановлені два великі дзеркала, встановлена прихована інсталяція. Стіни від вологи захищені плиткою. На підлозі розташована плитка "під мармур".

Другий санвузол, менший за розміром, виходить із батьківської спальні. Тут розташована стильна душова кабіна з трапом у підлогу зі «шторкою» зі скла. Ванна виконана в стилі лофт і має іншу схему освітлення.

Простір включає велике просторе ліжко з великою TV-зоною навпроти та виходом на лоджію із зоною відпочинку. За контуром кімнати розташовані місткі шафи для зручного зберігання речей. Якісно опрацьовано сценарій освітлення.

По всій квартирі продумані опуски стель, як у житлі передбачена система вентиляції та рекуперації, щоб у квартиру постійно надходило свіже повітря і всі члени сім'ї відчували себе комфортно.
Планування
Виконанні роботи

Планування

Виконанні роботи

• 3D візуалізації
• Перелік робіт з ремонту
• Повний перелік матеріалів
• Обмірний план приміщень
• Планувальне рішення
• План монтажу та демонтажу
• План розміщення сантехніки
• План розміщення меблів
• План оздоблення стін та підлоги
• План розміщення світильників
• План розмітки електрики
• Прорахунок вартості всіх ремонтних робіт та матеріалів
Вас можуть зацікавити