Дизайн проект двокімнатної квартири студії в ЖК «Преміум Парк»

700,00
грн.
Якщо все сподобалося, створимо варіанти планування вже завтра!
Констультація

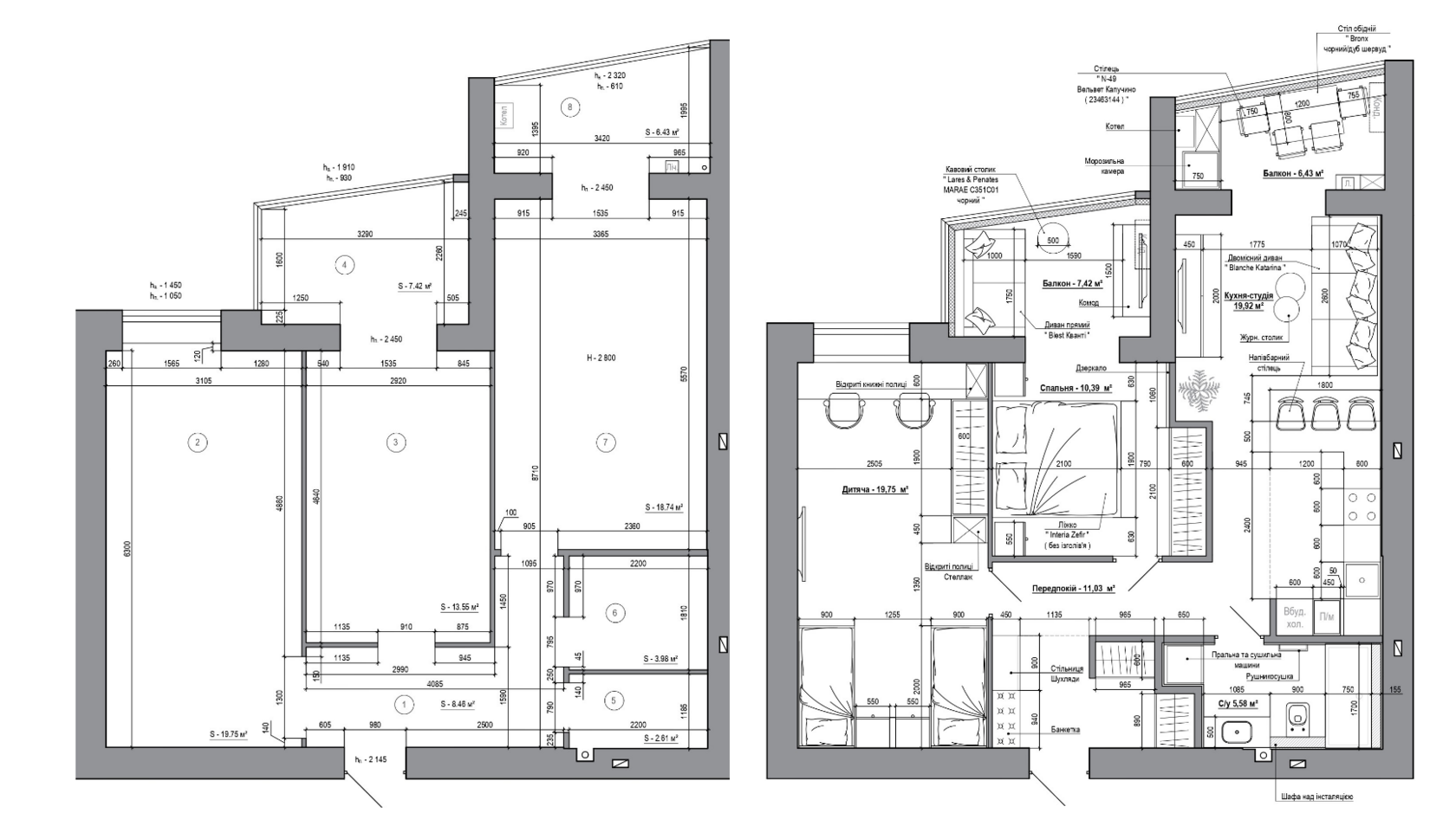
Квартира розташована в секції ЖК «Преміум Парк». Сім'я замовників складається з 4-х осіб – батьків та двох дочок. Спочатку планування квартири від забудовника було стандартним, проте воно не зовсім підходило під бажання та стиль життя наших замовників. За підсумками спілкування з ними ми дійшли загального висновку про необхідність невеликого перепланування, щоб усі члени сім'ї почувалися комфортно.

У дитячій кімнаті є всі умови для зручного проведення часу: робоче місце навпроти вікна для достатньої кількості денного світла під час виконання домашніх завдань та роботи за комп'ютером; комфортні спальні місця; сучасні меблі для зберігання речей - книг, одягу, іграшок та ін.
Колірне рішення обумовлено підбором квітів по всій квартирі.

Як і в більшості наших проектів, санвузол має стандартний набір елементів. З огляду на те, що в сім'ї є маленька дитина, замовники обрали ванну, а не душову кабіну. У ванній кімнаті розташована прихована інсталяція з унітазом і гігієнічним душем, а також сушка для рушників прихованого монтажу.
Для економного використання житлового простору у ванній пральна та сушильна машини знаходяться у ніші.

Замовники описали свою майбутню спальню як затишне та спокійне місце, де можна провести час наодинці із собою або коханою людиною. До спальні примикає невелика лоджія, яку ми обіграли як зону відпочинку, де розмістився невеликий диван, телевізор і зовнішній блок кондиціонера, який не забирає місця в загальній кімнаті.
Планування
Виконанні роботи

Планування

Виконанні роботи

• 3D візуалізації
• Перелік робіт з ремонту
• Повний перелік матеріалів
• Обмірний план приміщень
• Планувальне рішення
• План монтажу та демонтажу
• План розміщення сантехніки
• План розміщення меблів
• План оздоблення стін та підлоги
• План розміщення світильників
• План розмітки електрики
• Прорахунок вартості всіх ремонтних робіт та матеріалів
Вас можуть зацікавити