Дизайн проект двокімнатної квартири вторинки у Житомирі

700,00
грн.
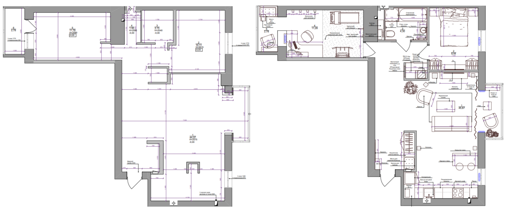
Внаслідок перепланування нами була облаштована зручна вхідна зона. Тут розташувалася шафа для верхнього одягу та м'який пуф для комфортної зміни взуття.
За бажанням замовника у просторій кухні-студії з об'єднаною лоджією було обладнано затишну обідню зону з барною стійкою та диваном з великою плазмою. Це оптимальний варіант для комфортного проведення часу з компанією, розваг та спілкування. Розташування квартири на 9-му поверсі дозволяє милуватися містом з висоти.

У невеликому робочому кабінеті розташований стіл з кількома моніторами та спортивний куточок для активного відпочинку у перервах між роботою. З протилежного боку будівлі знаходиться лоджія з видом на центр міста.

На прохання замовника було встановлено ванну кімнату. У ніші розмістили пральну та сушильну машину, щоб у власника квартири була можливість відразу одягати чисті та сухі речі. Поруч розмістилося місце для зберігання побутової хімії та рушників.

Спальня включає велике двоспальне ліжко з двома шафами навпроти і TV-зоною, розташованою по центру. У кімнаті є всі умови для якісного сну та зручного проведення дозвілля.
Планування
Виконанні роботи

Планування

Виконанні роботи

• 3D візуалізації
• Перелік робіт з ремонту
• Повний перелік матеріалів
• Обмірний план приміщень
• Планувальне рішення
• План монтажу та демонтажу
• План розміщення сантехніки
• План розміщення меблів
• План оздоблення стін та підлоги
• План розміщення світильників
• План розмітки електрики
• Прорахунок вартості всіх ремонтних робіт та матеріалів
Вас можуть зацікавити