Дизайн-проект однокімнатної квартири студії в ЖК Grand City Dombrovskyi

700,00
грн.
У нашу компанію звернулася замовниця з проханням виконати дизайн-проект однокімнатної квартири, площею 40 м². Головною метою було створити комфортний та ергономічний простір для життя та відпочинку
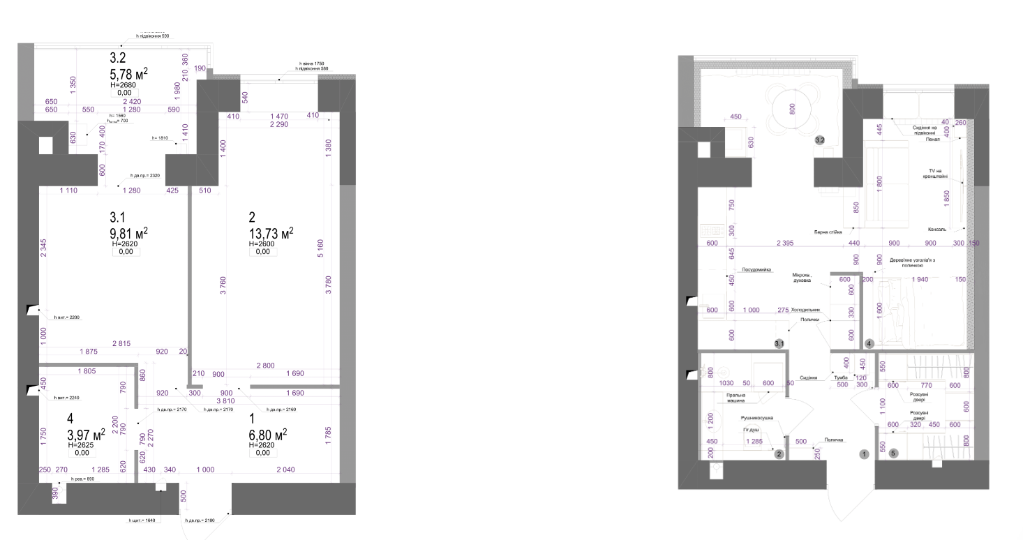
У першу чергу ми виконали перепланування квартири. Розповімо про його результати, починаючи з кухні.

Вдалося зробити комфортну та простору кухню, площею 16м2. Духова шафа, мікрохвильова піч, прихований холодильник та інша техніка винесені в окрему нішу навпроти робочої поверхні, завдяки чому вдалось не загромадити простір та отримати велику робочу поверхню з безліччю місць для зберігання. Також, було прийнято рішення перемістити обідню зону на лоджію для оптимізації використання приміщення.

Спальня розташована навпроти кухні та включає дві окремі зони відпочинку.

  • Спальна зона з великим двомісним ліжком, яка закривається шторою від надлишку світла. Тут можна комфортно відпочивати, читати книги та проводити час наодинці з собою.
  • TV-зона з диваном та плазмовим телевізором, де можна насолоджуватись переглядом фільмів та серіалів.

У санвузлі, площею всього 3,8 м², вдалося розмістити все необхідне для замовниці, а саме:
  • душову кабіну з трапом, будівельного виконання;
  • пральну машину з шафками для зберігання речей;
  • інсталяцію, під якою приховані всі комунікації водорозведення та фільтри;
  • додаткові полички для зберігання речей;
  • великий умивальник зі стильним та сучасним дзеркалом з підсвіткою.
При оформленні ванної використовувалася плитка у нестандартному форматі 10х30.

Не зважаючи на невелику площу квартири в цілому, для зручного зберігання речей вдалось виділити окреме місце для гардеробу. Він знаходиться одразу при вході, справа, що дає змогу не перенавантажувати передпокій додатковою шафою. Особливістю даного приміщення є поєднання в собі технічної комори, яка закривається розсувними дверцятами та гардеробу для зберігання речей. Тож, тут можна розмістити все необхідне: починаючи від одягу та взуття завершуючи речима, для яких, зазвичай, не вистачає місця- пилосос та праска, тощо.
Планування
Виконанні роботи

Планування

Виконанні роботи

• 3D візуалізації
• Перелік робіт з ремонту
• Повний перелік матеріалів
• Обмірний план приміщень
• Планувальне рішення
• План монтажу та демонтажу
• План розміщення сантехніки
• План розміщення меблів
• План оздоблення стін та підлоги
• План розміщення світильників
• План розмітки електрики
• Прорахунок вартості всіх ремонтних робіт та матеріалів
Вас можуть зацікавити